



























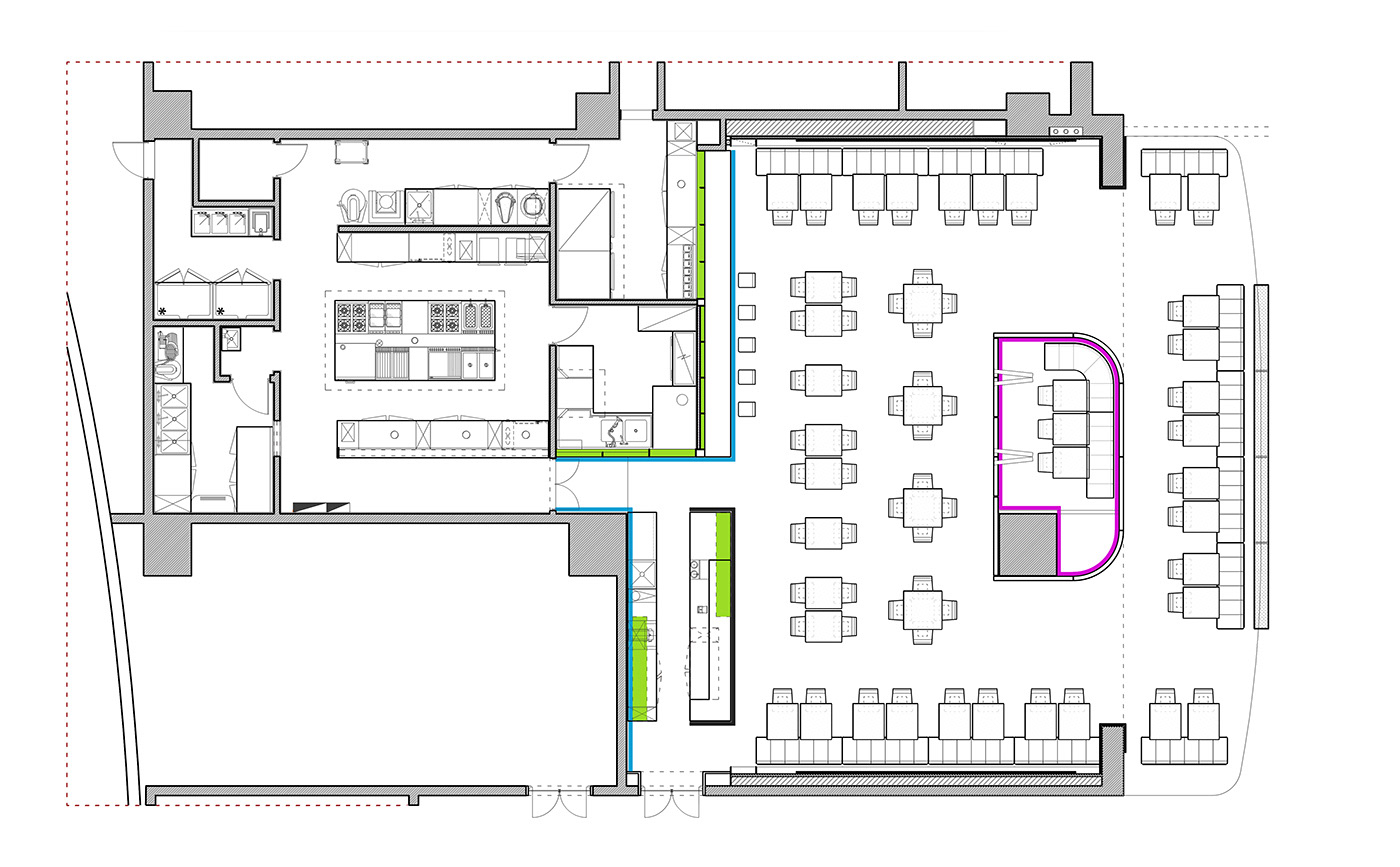
TIAGO SELECT is a 250 m² restaurant in the core of a fashion district in Beijing. Space has been conceived as secret den to discover, where hidden urban sub-cultural events may happen at any time. Design of the space is inspired by cyberpunk imaginary, with neon lighting, metal reflection, iridescence and fluorescent vibrations. Reminiscences of international backgrounds celebrate the European culinary culture in an environment rich of sophisticate references and designed for the youngest generation of Chinese. Straight lighting lines are crossing the steel corrugated ceiling, dotted by floating neon signs suggesting possible future destinations. Two large three-dimensional sculptural maps, made of assembled parts of European cities, are defining the main walls on both sides. A semitransparent mysterious box dominates the space with its surface of perforated aluminium plates, enclosing a detached room with a romantic effect of a lighting rain from above. The back wall contains all technical spaces: it is a large and darker surface of regular square tiles enlighten by fluo colored silicon grout lines. Glowing acrylic lines are framing thin metal plate shelves defining the kitchen’s entrance and functional spaces of pizza area and cocktail bar. Art installations, lighting and furniture have all been custom-made. Anodized titanium coating has been applied on steel chairs to create vibrant ever-changing reflections based on a rainbow palette of colors.