design team Marcella Campa, Stefano Avesani, Instant Hutong location Beijing, China function Research project type installation, built year 2015




































HUTONG MATERIALS CATALOGUE 胡同建筑物材目录
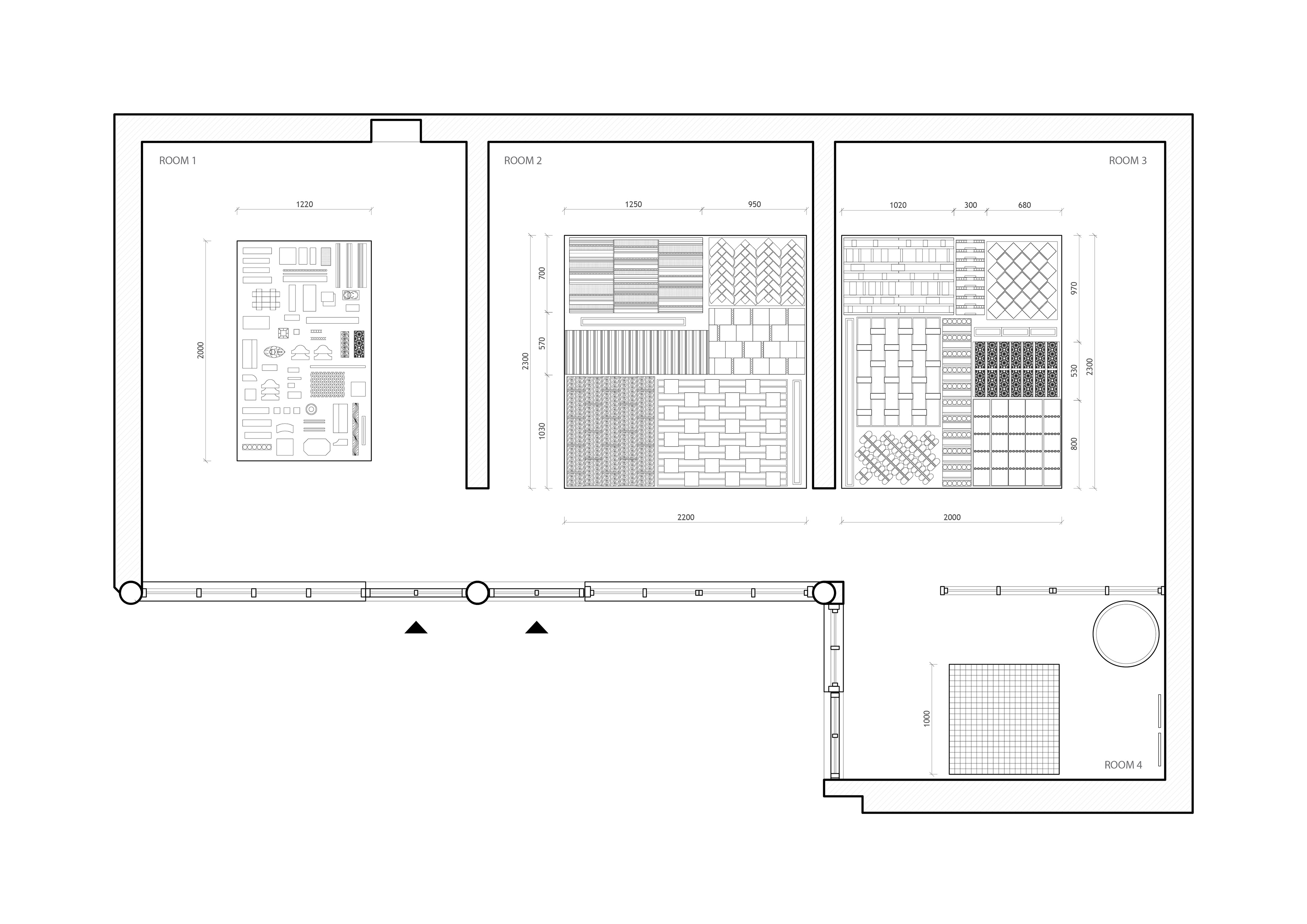
The installation shows the results of a research on local materials. Common construction materials have been selected and recombined to create a collection of different construction patterns. The idea moves from the previous architectural works by Ramoprimo practice and from the street explorations of Instant Hutong, such as the “Theory of Moments” project on which local materials and objects found in dilapidated courtyard houses in Beijing have been recombined and reassembled to create temporary public spaces. Combining different types of materials, glass, wood, bricks, metal, mirror, plastic, the designers aim to set an open interactive workshop in the form of a large study platform to explore configurations and possibilities: a catalogue to inspire and suggest combinations and solutions to be used as a reference tool for future construction purposes in the neighborhood.
这一部分的展览展示了对本土物材的研究成果。常规的建筑材料被拣选出来,并重新组合成一系列不同的建设模式和图案。这个理念来自于RAMOPRIMO(头条计画)以往的建筑项目的实践,以及Instant Hutong (速溶胡同)对于胡同街道的探索,如“矩理论”项目中,从北京破旧的四合院找来的材料被重组并用以创建临时的公共空间。结合不同类型的材料,玻璃,木材,砖,金属,镜子,塑料,设计师旨在建立一个开放互动的工作坊并以大型研究平台的形式,来探索物材的配置和可能性:以一个物材目录来启发新的组合方式和解决方案,并以此作为未来社区建设的参考工具。
CREDITS
Project by: RAMOPRIMO, Instant Hutong
Designers: Marcella Campa, Stefano Avesani
Date: 9.23-10.7 2015
Venue: no.8 Tiaozhou Hutong, Xicheng District, Beijing
Organizer: BJDW 2015 - Dashilar Platform – Dashilar PILOT
Support by: Italian Institute of Culture
web: www.ramoprimo.com www.instanthutong.com
