
















Scroll down to see more
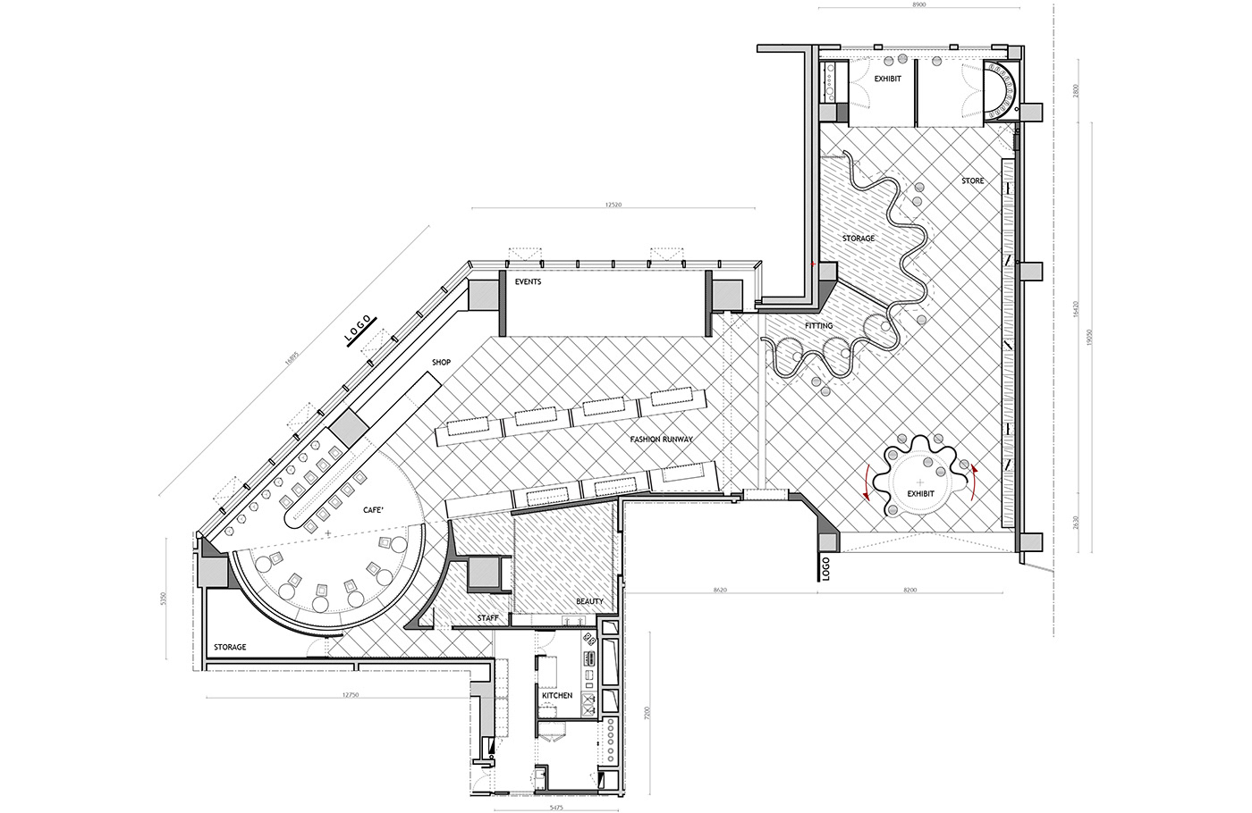
Meeting place for fashion lovers, which will inspire people to talk about lifestyle, creatives to organize events and photographers to host their photo shootings. Steel curved walls envelop the space like large folded metallic fabric. The reflection of the widespread lighting net on metallic floor add a diffuse sense of vibrancy. A rotating room in the entrance can serve as flexible stage for exhibiting young Chinese fashion designers. In the café area, a huge map of Shenyang city on lenticular panels will constantly change color according to the movements of viewers. An arched promenade is connecting the two main areas – the shop and the café – on the opposite sides of the store, providing a space for runway and inviting customers to reach the event space and other functional corners.