



















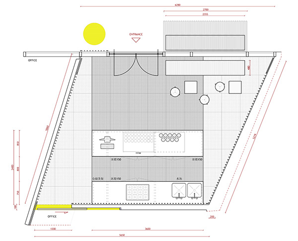
All internal walls and the ceiling of this bright and clean pop-up yogurt shop are covered by striped screens made of white paint pine wood to contrast with the colorful variety of the yogurt cups packaging. These semi-transparent decorative elements mainly re-propose the idea of wooden cranes used for traditional fruit stands in street markets. The slope ceiling invites customers to focus on the main yogurt display on the counter. Wooden strips have been also used to create specifically designed benches and tables. On the back of the counter, a large yellow sliding door connects the shop to the company’s office space. 所有内部墙壁和天花板都选用漆白的松木条隔杉来与五彩缤纷的酸奶包装盒做鲜明对比。这些半透明的装饰元素主要是以一种全新的手法重现市场里的水果摊位。天花板上的斜坡引导客户将视线集中在了吧台的展示柜,松木条隔杉元素同时也被单独运用在了桌子和长椅上。在吧台后面,一扇黄色推拉门连接店面和办公区域。